Артикул: 153
от 7 610 000 руб.
Комплектация
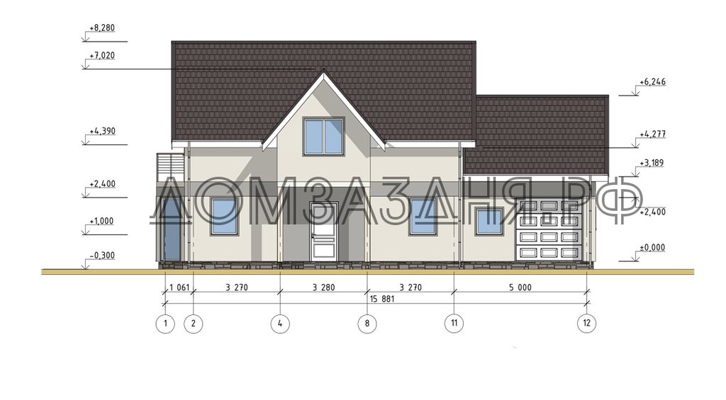
ПЛОЩАДЬ: 214м2
СРОК СТРОИТЕЛЬСТВА: 20-45 дней
ПЛОЩАДЬ: 214м2
СРОК СТРОИТЕЛЬСТВА: 20-45 дней
Двухэтажный дачный коттедж, подходит для круглогодичного проживания. Его планировка отвечает всем требованиям комфорта. При необходимости, в типовой проект вносятся любые изменения и дополнения. Срок возведения не превышает 30 дней.
Постройка возводится на фундаменте по выбору Заказчика, её стены из сухого строганного пиломатериала, внутренняя обшивка согласовывается с Заказчиком, наружная обшивка - сайдинг виниловый DOCKE по OSB-плитам. Стены, пол, перекрытие и перегородки утеплены. Для окон подобраны пластиковые стеклопакеты, обеспечивающие дотаточный уровень энергосбережения и шумоизоляции. Кровля — металлочерепица со всеми необходимыми доборными кровельными элементами.
| ФУНДАМЕНТ | Буронабивные сваи, ленточный мелкозаглубленный или свайно-винтовой. Гидроизоляция по верху фундамента рубероид. |
| НИЖНЯЯ ОБВЯЗКА | Замкнутая из бруса 150х200мм или строенного бруса 50х200мм. |
| ПОЛЫ | Балки пола из сухого строганного пиломатериала 50х200мм с шагом 600мм или менее. Утепление пола 200мм. Предчистовые полы OSB плита 9,5мм по обрезной доске 40х150 с прозором 30мм. |
| СТЕНЫ | Каркас из сухой строганной доски 50х200мм с шагом 600мм или менее. Утепление стен 200мм. Внутренняя обшивка деревянной вагонкой 1 сорта шириной 90мм или135мм, OSB-3 толщиной 9,5мм или гипсокартон 9мм в два слоя. Наружная обшивка сайдинг DOCKE по OSB плите 9,5мм |
| ПЕРЕГОРОДКИ | Каркас из сухой строганной доски 50х100мм с шагом 600мм или менее, обшит с двух сторон деревянной вагонкой 1 сорта шириной 90мм или 135мм, OSB-3 толщиной 9,5мм или гипсокартоном 9мм в два слоя. Утепление 100мм |
| ПОТОЛОК | Потолок подшит деревянной вагонкой 1 сорта шириной 90мм или 135мм, OSB-3 толщиной 9,5мм или гипсокартоном 9мм в два слоя. Утепление 150мм. Лаги — сухая строганная доска 50х200мм с шагом 600мм. |
| ОКНА, ДВЕРИ | Оконные конструкции - пятикамерный профиль с двухкамерным стеклопакетом, межкомнатные двери деревянные. (количество и размеры согласовываются с Заказчиком) |
| КРОВЛЯ | Металлочерепица с комплектом коньковых и фронтонных планок, по стропилам из доски 50х200мм с шагом 600мм. Обрешетка доска 22х150мм 1 сорта с шагом 350мм. Утепление 200мм. Карнизы шириной 600мм подшиты софитами пластиковыми DOCKE с перфорацией. |
ПроектСогласование проекта дома как по предлагаемым стандартным вариантам, так и по планировочному решению Заказчика до заключения договора |
|
Осмотр участка, привязка домаВыезд прораба на участок Заказчика до начала работ после заключения договора для осмотра участка, подъездных путей и разметки местоположения дома |
|
Погрузочно-разгрузочные работыПогрузка материала на складе компании Подрядчика. Разгрузка материала на участке Заказчика |
|
Монтажные работыРаскрой строительных материалов по месту с возможностью скорректировать проект по желанию Заказчика. |
|
ОхранаОтветственность Подрядчика за сохранность материала до подписания акта приема-передачи |
| ФУНДАМЕНТ | |
| Вариант 1 | Столбчатый из фундаментных блоков 200х300х300мм. |
| Вариант 2 | Столбчатый из бетона. Заливается на месте. Размер бетонного столба 600х250х250. |
| Вариант 3 | Столбчатый из бетона, армированный. Заливается на месте. Размер бетонного столба 2200х250х250. Расстояние между бетонными столбами не более 3500мм, или |
| Вариант 4 | Винтовые сваи D=108, L=2500, забурение до плотных слоев грунта, с заполнением металлической гильзы ЦПС и монтажом опорного оголовка |
| Дополнительные опции | Ленточный армированный фундамент,монолитная бетонная армированнаяплита,шведская плита с теплыми полами,другие виды фундаментов, кирпичная кладка по ленточному фундаменту, свайно-винтовой фундамент с металлическим ростверком, облицовка цоколя с установкой отливов |
| НАРУЖНЫЕ СТЕНЫ | |
| Нижняя обвязка | Замкнутая из бруса сечением 100х100мм или сдвоенного бруса 50х100мм |
| Замкнутая из бруса сечением 150х150мм или строенного бруса 50х150мм | |
| Замкнутая из бруса сечением 150х200мм или строенного бруса 50х200мм | |
| Стойки каркаса | Стойки сечением 30х100мм из древесины хвойных пород с шагом не более 600мм. |
| Стойки сечением 50х100мм из древесины хвойных пород с шагом не более 600мм. | |
| Стойки сечением 50х150мм из древесины хвойных пород с шагом не более 600мм. | |
| Стойки сечением 50х200мм из древесины хвойных пород с шагом не более 600мм. | |
| Защита каркаса | Трехслойная мембрана |
| Ветровлагозащитная пленка | |
| Утепление | Минераловатный (базальтовый) утеплитель в слой 50мм |
| Минераловатный (базальтовый) утеплитель в слой 100мм | |
| Минераловатный (базальтовый) утеплитель в слой 150мм | |
| Минераловатный (базальтовый) утеплитель в слой 200мм с применением перекрестного утепления | |
| Наружная обшивка | ОСП-3 плита 9мм |
| Евровагонка хвойных пород толщиной 12мм | |
| Евровагонка хвойных пород толщиной 16мм 1 сорт | |
| Виниловый сайдинг (DOCKE/FineBer) по OSB плите 9,5мм, обрамление окон металлическими откосами, отливами | |
| Дополнительные опции | Обработка каркаса/наружной обшивки антисептиком (Сенеж, Акватекс), усиление каркаса металлическими перфорированными изделиями, наружная обшивка металлическим сайдингом(RAL, Printech), фасадными панелями, деревянными панелями"Имитация бруса", блокхаус ит.д. |
| ПИРОГ ПОЛА 1-го ЭТАЖА | |
| Балки перекрытий | Балки пола сечением 40х150мм шагом не более 600мм. |
| Балки пола сечением 50х150мм шагом не более 600мм. | |
| Балки пола сечением 50х200мм шагом не более 600мм. Утепление в слой 150мм с устройством чернового пола. | |
| Балки пола сечением 50х200мм шагом не более 600мм. Утепление в слой 200мм с устройством чернового пола. | |
| Верхнее покрытие пола | Половая доска шпунтованная 25х135мм |
| Половая доска шпунтованная 35х135мм | |
| Предчистовые полы OSB плита 9,5мм по обрезной доске 40х150мм с прозором 30мм, или шпунтованная доска35х135мм | |
| Дополнительные опции | Обработка обвязки и балок перекрытий антисептиком (Сенеж, Акватекс) |
| ВНУТРЕННЯЯ ОТДЕЛКА СТЕН, ПЕРЕГОРОДКИ, ПОТОЛОК, ЛЕСТНИЦА | |
| Внутреняя отделка | Обшивка ДВП |
| Евровагонка хвойных пород толщиной 16мм сорт АВ | |
| Евровагонка хвойных пород толщиной 12,5-14мм сорт АВ | |
| Гипсокартон 9,5мм в 2слоя или широкая вагонка 135х16мм сорт АВ | |
| Перегородки | Каркас из пиломатериала сечением 30х100 с шагом 900мм, обшивка ДВП с двух сторон. |
| Каркас из пиломатериала сечением 50х100 с шагом не более 600мм без обшивки | |
| Каркас из пиломатериала сечением 50х100 с шагом не более 600мм, обшивка евровагонкой хвойных пород толщиной 16мм с двух сторон. | |
| Каркас из пиломатериала сечением 50х100 с шагом 600мм, обшивка гипсокартоном 9,5мм в 2слоя или широкой вагонкой 135х16мм.Утепление минераловатным утеплителем в слой 100мм. | |
| Потолок | Перекрытие из пиломатериала сечением 40х150мм с шагом не более 600мм. Обшивка ДВП |
| Перекрытие из пиломатериала сечением 40х150мм с шагом не более 600мм. Обшивка евровагонка хвойных пород толщиной 12,5-14мм сорт АВ | |
| Перекрытие из пиломатериала сечением 50х150мм с шагом не более 600мм,без обшивки | |
| Перекрытие из пиломатериала сечением 50х150мм с шагом не более 600мм. Обшивка евровагонкой толщиной 16мм. | |
| Перекрытие из пиломатериала сечением 50х150мм с шагом не более 600мм. Утепление минераловатным утеплителем в слой 150мм. Обшивка евровагонкой толщиной 16мм, сорта АВ. | |
| Перекрытие из пиломатериала сечением 50х200мм с шагом не более 600мм. Утепление минераловатным утеплителем в слой 200мм. Обшивка евровагонкой толщиной 16мм,сорта АВ. | |
| Лестница | Техническая (одномаршевая), из пиломатериала сечением 50х200мм |
| Одномаршевая из пиломатериала сечением 50х200мм с установкой перил и ограждения из бруса 50х50мм. | |
| Одномаршевая из пиломатериала сечением 50х200мм с установкой балясин, перил и ограждения. | |
| Дополнительные опции | Внутренняя обшивка стен и перегородок деревянными панелями с имитацией под брус и бревно, электропроводка с установкой выключателей и розеток, закладка гильз ПВХ D110 для ввода-вывода труб водоснабжения, канализации |
| ОКНА, ДВЕРИ | |
| Окна | Деревянные 1000х1200мм / пластиковые 800х1000мм |
| Пластиковые двустворчатые(одна створка поворотно-откидная) с одинарным стеклопакетом 1000х1200мм | |
| Комплект пластиковых окон разного размера одно, двух,и трехстворчатых с двойным стеклопакетом | |
| Установка москитных сеток на окна | |
| Установка металлических отливов, пластиковых подоконников | |
| Двери | Дверь входная деревянная 800х2000мм |
| Дверь входная металлическая 800х200мм | |
| Дверь входная металлическая с теплым контуром, комплект межкомнатных дверей с установкой. | |
| Дополнительные опции | Установка дополнительных окон и дверей, обрамление фигурными наличниками. |
| КРОВЛЯ, КАРНИЗЫ | |
| Кровельный пирог | Профнастил оцинкованный по стропилам из пиломатериала сечением 30х100мм с шагом 900мм. Обрешетка обрезная доска 22х100мм. Карнизы шириной 200мм подшиты евровагонккой |
| Профнастил оцинкованный по стропилам из пиломатериала сечением 50х100мм с шагом 600мм. Обрешетка обрезная доска 22х100мм. Карнизы шириной 300мм без подшива. | |
| Профнастил оцинкованный по стропилам из пиломатериала сечением 50х100мм с шагом 600мм. Обрешетка обрезная доска 22х100мм. Карнизы шириной 300мм подшиты вагонкой толщиной 16мм | |
| Металлочерепица по стропилам из пиломатериала сечением 50х150мм с шагом 600мм. Обрешетка обрезная доска 22х100мм сшагом 350мм. Утепление в слой 150 мм. Карнизы шириной 500мм подшиты софитами пластиковыми перфорированными | |
| Металлочерепица по стропилам из пиломатериала сечением 50х200мм с шагом 600мм. Обрешетка обрезная доска 22х100мм с шагом 350мм. Утепление в слой 200 мм. Карнизы шириной 600мм,подшиты софитами пластиковыми перфорированными. | |
| Установка доборных элементов на кровлю(фронтонные , коньковые планки),конькового уплотнителя. | |
| Дополнительные опции | Монтаж гибкой черепицы с изменением кровельного пирога,монтаж других видов кровельного покрытия,установка водосточной системы |
|
Комплектация
|
Дом для жизни |